Baujahr:
1956,
angebaut 2007,
modernisiert ab 2015
Bauweise:
massiv
zweieinhalbgeschossig
voll unterkellert
verputzt
Grundstück:
148 m²
Eine Garage mit Gartenzugang gehört zum Haus.
Wohnfläche:
ca. 75,22 m²
zzgl. ca. 6,46 m² zu Wohnzwecken ausgebauter Nutzfläche im Souterrain (Badezimmer)
sowie ca. 12 m² zu Wohnzwecken ausgebauter Nutzfläche im Dachgeschoss
Aufteilung:
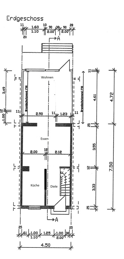
Erdgeschoss (47,46 m²)
Diele (ca. 6,85 m²)
Küche (ca. 6,46 m²)
Wohn-Esszimmer (ca. 34,15 m²) mit Ausgang zu Terrasse und Garten
1. Obergeschoss (27,76 m²)
Flur (ca. 4,92 m²)
WC mit Fenster (ca. 1,78 m²)
Schlafzimmer (ca. 14,60 m²)
Kinderzimmer (ca. 6,46 m²)
Dachgeschoss
Ca. 12 m² zu Wohnzwecken ausgebaute Nutzfläche (Studioraum).
Souterrain:
Zusätzlich zu den Nutzkellerräumen befindet sich hier das Badezimmer mit einer Walk-In-Dusche, Wanne, Waschtisch, Hänge-WC, Handtuchhalterheizkörper sowie Fenster



































